Description
EG AGENCY vous présente en exclusivité à la vente,
Secteur CHAVE, à proximité des commerces, écoles, et transports en commun :
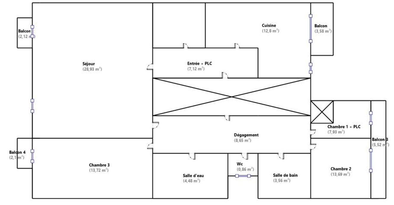
Appartement T4 traversant de 102m2 avec 4 balcons et SEUL sur le Palier.
Cet appartement situé au 6ème étage avec ascenseur est composé d'un vaste salon / séjour avec balcon, d'une cuisine indépendante avec balcon, de trois belles chambres dont deux avec placards intégrés et balcons, d'une salle d'eau, d'une salle de bain ainsi que d'un WC séparé.
Une cave vient compléter la vente de ce bien.
Les charges de copropriété sont de 392 Euros / Mois comprenant : L'eau froide, l'ascenseur, le chauffage et l'entretien des parties communes, ainsi que les honoraires du syndic.
La taxe foncière est de : 1 624 Euros / An.
Pour plus d'informations, n'hésitez pas à nous contacter :
EG AGENCY07 43 39 32 55contact@egagency.frwww.egagency.fr
64 avenue d'Haïfa 13008 MarseilleAchat Vente Gestion Location Estimation gratuite sous 24h
Secteur CHAVE, à proximité des commerces, écoles, et transports en commun :
Appartement T4 traversant de 102m2 avec 4 balcons et SEUL sur le Palier.
Cet appartement situé au 6ème étage avec ascenseur est composé d'un vaste salon / séjour avec balcon, d'une cuisine indépendante avec balcon, de trois belles chambres dont deux avec placards intégrés et balcons, d'une salle d'eau, d'une salle de bain ainsi que d'un WC séparé.
Une cave vient compléter la vente de ce bien.
Les charges de copropriété sont de 392 Euros / Mois comprenant : L'eau froide, l'ascenseur, le chauffage et l'entretien des parties communes, ainsi que les honoraires du syndic.
La taxe foncière est de : 1 624 Euros / An.
Pour plus d'informations, n'hésitez pas à nous contacter :
EG AGENCY07 43 39 32 55contact@egagency.frwww.egagency.fr
64 avenue d'Haïfa 13008 MarseilleAchat Vente Gestion Location Estimation gratuite sous 24h
Résumé
-
Type Appartement
-
Chambres 3
-
Salle de bains 1
-
Surface 101.74 m²
-
Prix 283 500€
Localisation
Détails
-
Référence VA2684
-
Année de construction 1936
-
Numéro d'étages 6
-
Nombre d'étages 8
-
Exposition Nord Sud
-
Cuisine Equipée
-
Prix 283 500€
-
Charges honoraires Vendeur
-
Taxe foncière 1624€
-
Copropriété Oui
-
Nombre de lots 18
-
Procédures Pas de procédures en cours
Les plus
-
Cave
-
Meublé
Diagnostic énergétique du bien
