Description
EG AGENCY vous présente à la venteMARSEILLE 13009 BD DE SAINTE-MARGUERITE
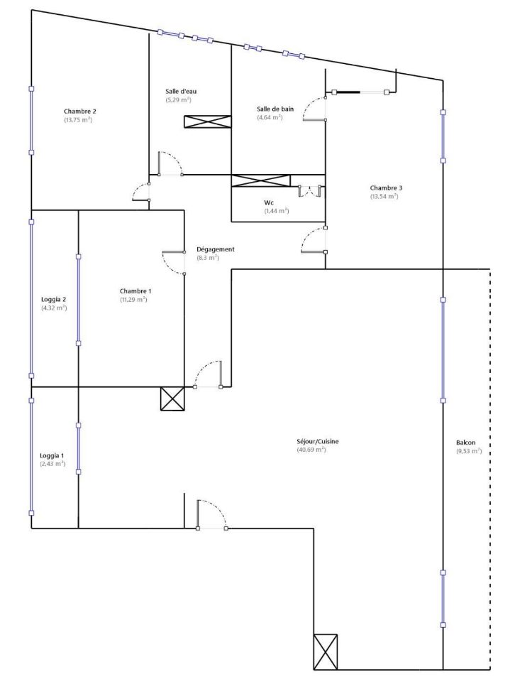
Au sein d'une copropriété bien entretenue, découvrez cet appartement T4/5 de 98,94 m² loi Carrez, situé en étage élevé avec ascenseur.
Cet appartement TRAVERSANT se compose d'un spacieux séjour / cuisine de plus de 40 m², baigné de lumière grâce à son exposition Sud / Sud-Ouest, de trois chambres dont une suite parentale, d'une salle de bain, d'une salle d'eau et de WC indépendants.
Traversant et très lumineux, il bénéficie également de beaux extérieurs avec deux loggias (6,75 m² au total) et un balcon d'environ 10 m².
Possibilité de créer facilement une 4e chambre, selon vos besoins.
Toutes les pièces sont climatisées, offrant un confort optimal au quotidien.
Places de parking privative à la copropriété, située à l'arrière de l'immeuble.
2 Caves en sous-sol viennent compléter la vente de ce bien.
Informations complémentaires :
Surface loi Carrez : 98,94 m²
Surface annexe : 25,03 m²
Loggias : 6,75 m²
Balcon : ~10 m²
Étage élevé avec ascenseur
Appartement traversant
Exposition : Sud / Sud-Ouest (séjour)
Climatisation dans toutes les pièces
Parking privatif à la copropriété
Charges : 190 / mois
Taxe foncière : 2 050 / an
Visite virtuelle disponible sur notre site internet.
Pour plus d'informations ou organiser une visite, contactez-nous :
EG AGENCYcontact@egagency.frwww.egagency.fr
EG AGENCY Achat - Vente - Gestion - Location - Estimation Gratuite sous 24h
Au sein d'une copropriété bien entretenue, découvrez cet appartement T4/5 de 98,94 m² loi Carrez, situé en étage élevé avec ascenseur.
Cet appartement TRAVERSANT se compose d'un spacieux séjour / cuisine de plus de 40 m², baigné de lumière grâce à son exposition Sud / Sud-Ouest, de trois chambres dont une suite parentale, d'une salle de bain, d'une salle d'eau et de WC indépendants.
Traversant et très lumineux, il bénéficie également de beaux extérieurs avec deux loggias (6,75 m² au total) et un balcon d'environ 10 m².
Possibilité de créer facilement une 4e chambre, selon vos besoins.
Toutes les pièces sont climatisées, offrant un confort optimal au quotidien.
Places de parking privative à la copropriété, située à l'arrière de l'immeuble.
2 Caves en sous-sol viennent compléter la vente de ce bien.
Informations complémentaires :
Surface loi Carrez : 98,94 m²
Surface annexe : 25,03 m²
Loggias : 6,75 m²
Balcon : ~10 m²
Étage élevé avec ascenseur
Appartement traversant
Exposition : Sud / Sud-Ouest (séjour)
Climatisation dans toutes les pièces
Parking privatif à la copropriété
Charges : 190 / mois
Taxe foncière : 2 050 / an
Visite virtuelle disponible sur notre site internet.
Pour plus d'informations ou organiser une visite, contactez-nous :
EG AGENCYcontact@egagency.frwww.egagency.fr
EG AGENCY Achat - Vente - Gestion - Location - Estimation Gratuite sous 24h
Résumé
-
Type Appartement
-
Chambres 3
-
Salle de bains 1
-
Surface 106.00 m²
-
Prix 289 000€
Localisation
Détails
-
Référence VA2725
-
Année de construction 1968
-
Numéro d'étages 5
-
Nombre d'étages 8
-
Exposition Nord Sud
-
Chauffage Individuel gaz
-
Cuisine Equipée
-
Prix 289 000€
-
Charges honoraires Vendeur
-
Charges mensuelles 190.00€
-
Taxe foncière 2058€
-
Copropriété Oui
-
Nombre de lots 89
-
Procédures Pas de procédures en cours
Les plus
-
Cave
-
Box
Visite virtuelle
Diagnostic énergétique du bien
