Description
EG AGENCY vous présente à la vente,
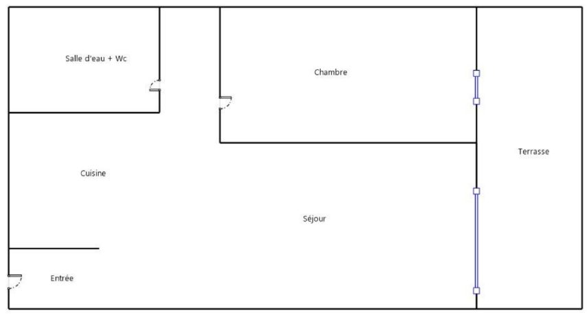
Idéalement situé dans le 8ème arrondissement de Marseille, au coeur d'une résidence calme et verdoyante de 2019, cet appartement de type 2 en rez-de-chaussée offre une surface habitable de 46.52 m² avec une terrasse de 15.44 m² donnant directement sur les espaces verts de la copropriété. Un garage est à vendre en sus du prix affiché.
Le bien se compose d'une pièce de vie lumineuse avec cuisine ouverte donnant accès à une terrasse de 15.44m2, d'une chambre spacieuse de 12,5 m², et d'une salle d'eau moderne de 4,9 m² avec toilettes et douche à l'italienne.
La terrasse constitue un véritable atout, idéale pour profiter d'un extérieur au calme tout en restant en plein coeur du 8ème.
Proche des commerces, écoles, transports en commun, et à quelques minutes des plages du Prado, cet appartement conviendra aussi bien pour une résidence principale qu'un investissement locatif ou un pied-à-terre.
Copropriété bien entretenue, sans procédures en cours.
Possibilité d'acheter un place de garage en sus du prix pour 21 000 euros.
Les charges de copropriété sont de 116 euros / Mois, comprenant : l'entretien des parties communes, l'entretien des espaces verts, l'eau froide, l'eau chaude, l'ascenseur, le fonds de travaux loi ALUR, ainsi que les honoraires du syndic.
La taxe foncière est de : 1220 euros / An.
Visite Virtuelle 3D disponible sur notre site internet :
Www . egagency . fr
Pour plus d'informations, contactez nous :
EG AGENCY
07 43 39 32 55
contact@egagency.fr
EG AGENCY - 64 Avenue d'Haïfa, 13008 Marseille.
Achat - Vente - Gestion - Location - Estimation Gratuite sous 24h.
Idéalement situé dans le 8ème arrondissement de Marseille, au coeur d'une résidence calme et verdoyante de 2019, cet appartement de type 2 en rez-de-chaussée offre une surface habitable de 46.52 m² avec une terrasse de 15.44 m² donnant directement sur les espaces verts de la copropriété. Un garage est à vendre en sus du prix affiché.
Le bien se compose d'une pièce de vie lumineuse avec cuisine ouverte donnant accès à une terrasse de 15.44m2, d'une chambre spacieuse de 12,5 m², et d'une salle d'eau moderne de 4,9 m² avec toilettes et douche à l'italienne.
La terrasse constitue un véritable atout, idéale pour profiter d'un extérieur au calme tout en restant en plein coeur du 8ème.
Proche des commerces, écoles, transports en commun, et à quelques minutes des plages du Prado, cet appartement conviendra aussi bien pour une résidence principale qu'un investissement locatif ou un pied-à-terre.
Copropriété bien entretenue, sans procédures en cours.
Possibilité d'acheter un place de garage en sus du prix pour 21 000 euros.
Les charges de copropriété sont de 116 euros / Mois, comprenant : l'entretien des parties communes, l'entretien des espaces verts, l'eau froide, l'eau chaude, l'ascenseur, le fonds de travaux loi ALUR, ainsi que les honoraires du syndic.
La taxe foncière est de : 1220 euros / An.
Visite Virtuelle 3D disponible sur notre site internet :
Www . egagency . fr
Pour plus d'informations, contactez nous :
EG AGENCY
07 43 39 32 55
contact@egagency.fr
EG AGENCY - 64 Avenue d'Haïfa, 13008 Marseille.
Achat - Vente - Gestion - Location - Estimation Gratuite sous 24h.
Résumé
-
Type Appartement
-
Chambres 1
-
Salle d'eau 1
-
Surface 46.52 m²
-
Prix 220 000€
Localisation
Détails
-
Référence VA2590
-
Année de construction 2019
-
Exposition Est Sud
-
Chauffage Individuel électrique
-
Cuisine Coin cuisine équipée
-
Prix 220 000€
-
Charges honoraires Vendeur
-
Charges mensuelles 116.00€
-
Taxe foncière 1220€
-
Copropriété Oui
-
Nombre de lots 88
-
Procédures Pas de procédures en cours
Les plus
-
Box
-
Terrasse
Visite virtuelle
Diagnostic énergétique du bien
