Description

EG AGENCY vous présente à la vente,
Sur le secteur du PALAIS DE JUSTICE - PREFECTURE (13006),
A proximité immédiate des commerces, des écoles, des transports en commun et des principaux axes autoroutiers :

BEL IMMEUBLE - STYLE HAUSSMANNIEN, à deux pas de la place ESTRANGIN et du métro.

POSSIBILITÉ D'EXERCER PROFESSIONS LIBÉRALES ( BUREAUX ) - POSSIBILITÉ DE DIVISER EN PLUSIEURS LOTS (2/3 Lots)

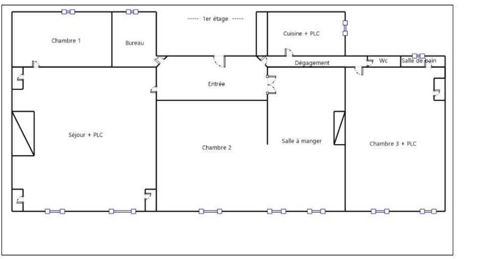
Appartement T4/5 de 114.75 m2 LOI CARREZ , A RÉNOVÉ , travaux à prévoir.

Cet appartement traversant situé au premier étage sans ascenseur saura vous séduire par ses beaux volumes ainsi que par sa luminosité.

Il est composé d'un vaste salon-salle à manger d'une surface d'environ 30 m2 , de trois belles chambres dont une avec salle de bain, d'une cuisine indépendante, d'un wc séparé, d'une pièce pouvant faire office de dressing ou de seconde salle d'eau/bain , Possibilité de réagencement.

L'appartement dispose également d'une belle hauteur sous plafond de 4 mètres avec moulures.

Possibilité d'abonnement pour le stationnement : Parking a proximité .


Les charges sont de : 109 euros / mois, comprenant : l'entretien des parties communes, , l'eau froide, l'ascenseur, le fonds de travaux loi ALUR et les honoraires du syndic.

La taxe foncière est de : NC euros / an.

Visite virtuelle 3D disponible sur notre site internet :
Www. egagency. fr

Pour plus d'informations, contactez-nous :

EG AGENCY
06 64 01 97 89
benjamin.amar@egagency.fr

EG AGENCY - 64 Avenue d'Haïfa, 13008 Marseille.
Achat - Vente - Gestion - Location - Estimation Gratuite sous 24h.

Votre conseiller EG AGENCY : Amar Benjamin
Agent commercial (Entreprise individuelle)
RSAC 883 085 672
RCP 59 661 778

Résumé

  • Type Bureaux
  • Surface 115 m²
  • Prix 360 000€

Localisation

Détails

  • Référence VP126
  • Année de construction 1950
  • Numéro d'étages 1
  • Nombre d'étages 4
  • Chauffage Electrique
  • Prix 360 000€
  • Charges honoraires Vendeur
  • Charges mensuelles 109.00€
  • Copropriété Oui
  • Nombre de lots 10
  • Procédures Pas de procédures en cours

Visite virtuelle

Diagnostic énergétique du bien

DPE GES

Partager cette annonce

EG Agency

EG Agency

64 avenue d’Haifa
13008 Marseille

contact@egagency.fr 07.69.66.48.21

Demande d'informations supplémentaires

    Annonces similaires

    Appartement, Marseille (13010)

    Appartement, Marseille (13001)

    • 249 000€

    Appartement, Marseille (13002)

    • 150 000€

    Appartement, Marseille (13008)

    • 224 000€